Pour construire une maison durable et de haute qualité, chaque propriétaire doit choisir un projet adapté et se familiariser avec le schéma de la structure du bâtiment. Afin de sauver le terrain, un projet de maison à un étage en bois sera une solution rentable. Le plan d'une telle propriété résidentielle est populaire auprès de nombreux développeurs.
Table des matières
Structure en bois avec un loft d'un bar
Les structures en bois sont respectueuses de l'environnement. L'objet peut être acheté au meilleur prix. Dans le froid et le gel, la pièce sera chaude. Dans la chaleur, vous pouvez profiter d'une lumière fraîche.
L'arbre est traité avec une solution spéciale qui permet de prolonger la durée de vie du bâtiment. La conception naturelle de la structure a été maintenue pendant de nombreuses années. Dans le grenier, il y a des chambres que les locataires peuvent utiliser à leur discrétion.

En savoir plus: Belles conceptions de maisons à deux étages à partir de blocs de mousse (50 photos)
C'est le grenier qui donne au bâtiment un aspect original, sophistiqué et élégant. Les propriétaires de la maison peuvent utiliser l'extension supplémentaire par eux-mêmes.
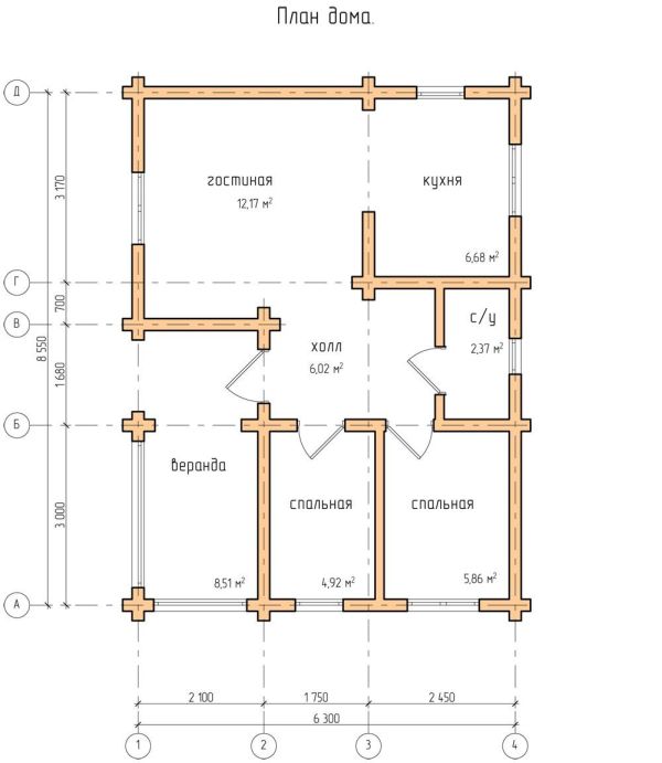
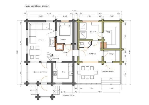
Une structure en bois avec un grenier en bois présente plusieurs avantages. Au rez-de-chaussée il y a un salon confortable qui vous permet d'entrer dans le salon en utilisant un petit escalier. Un dressing mène à la cuisine, combinée au salon.

La chambre est petite. La salle de bains compacte est combinée avec une douche. Dans le grenier il y a un bureau personnel, une chambre et une salle de bain.
Les murs extérieurs sont constitués de poutres collées. Le toit est en bardeaux.
En savoir plus:Le meilleur projet de maison de plain-pied dans un style moderne
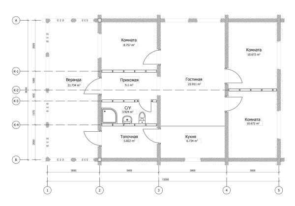
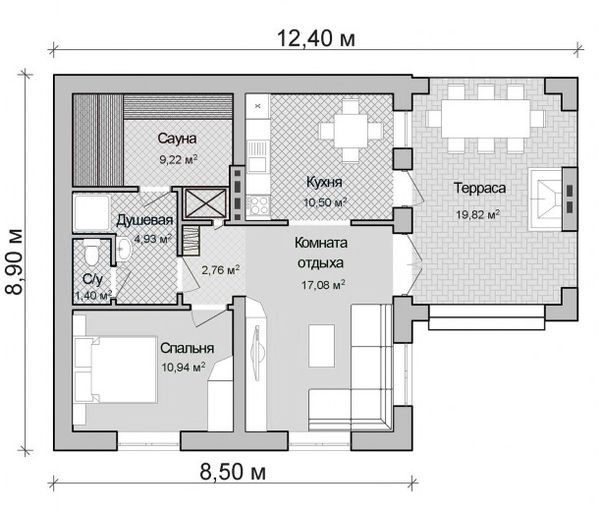
Maison de plain-pied avec terrasse et bains publics
Il s'agit d'un projet de type compact unique. La partie principale est destinée à l'organisation du premier étage. Il dispose d'un salon avec un salon. Le design est compact et élégant. Il y a un bain, une douche et une chaufferie.
La particularité de ce projet est la présence d'une terrasse conçue pour entrer dans le salon.

Maison de plain-pied comprenant 2 chambres, un hall, une salle de bain et un dressing. La décoration murale à l'extérieur est en bois.
Établissement résidentiel de plain-pied avec bains publics
Le projet parfait. Le dessin vous permet de fixer les dimensions requises. Vous pouvez calculer immédiatement la bonne quantité de matériaux. La création correcte d'un dessin et d'un schéma sera la clé de la construction compétente d'un immeuble résidentiel.
Ils développent l'aménagement du bâtiment, prévoient la présence d'espaces sportifs ou de loisirs. Un dessin séparé est fait pour le bain.
Les structures en bois ont des propriétés opérationnelles améliorées par rapport aux objets construits en brique et autres matériaux.
Le bois est un matériau respectueux de l'environnement conçu pour décorer l'intérieur d'un espace de vie. L'humidité dans la maison est toujours régulée. Les murs conservent le niveau de chaleur requis.
Le bois résiste aux changements brusques de température. Le matériau est doté de propriétés d'isolation thermique et acoustique irréprochables. La durée de vie d'une maison d'un étage construite à l'aide d'une technologie moderne est d'au moins 60 ans.
Une maison en bois classique est un bâtiment résidentiel spacieux idéal. Le design se réchauffe uniformément, le faisceau économise la chaleur autant que possible à l'intérieur.
Le projet comprend des escaliers. Pour les structures en bois, il n'est pas recommandé d'utiliser des appareils de chauffage. Une solution idéale est le chauffage au poêle. Les maisons en bois d'un étage sont confortables et sûres à vivre.
En savoir plus: 14 projets de maisons à un étage les plus populaires
Le matériau de construction le plus cher est la poutre collée, de haute qualité et d'aspect attrayant. Poutre combinée étonnamment attrayante de mélèze et de pin.
Le résultat est un matériau naturel durable. Les murs construits sur la base de poutres collées ne sont pas déformés. Une finition supplémentaire dans ce cas n'est pas nécessaire.

Hélas, pas encore de commentaires. Soyez le premier!