
Un toit fiable est une bonne raison de se sentir à l'aise et en sécurité. Lorsqu'il y a de la confiance dans votre toit au-dessus de votre tête, alors aucune pluie, orage, ainsi qu'un soleil brûlant ou un vent froid qui fait rage ne sont pas terribles. Et par conséquent, lors de l'érection du toit d'une maison en bois, une attention particulière doit être accordée à la conception et à la conception de chaque nœud et aux détails du toit, afin de dormir à l'avenir.
La fiabilité de la toiture est, bien sûr, d'excellente qualité, mais son attractivité n'en est pas moins importante. Le toit, dans une certaine mesure, est la «face» de toute maison, et la composante esthétique et l'intégrité de la structure entière dépendent de la façon dont elle est encadrée, des matériaux de construction utilisés et de sa forme.
Table des matières
Différentes formes de toits pour tous les goûts et tous les budgets
Les toits sont classés selon divers panneaux. En fait, le nombre de types de toits est énorme, mais parmi eux il y en a plusieurs des plus populaires.
La toute première vue, et peut-être la plus simple, est toit pent. En termes de consommation de matériaux et de rentabilité, elle pourrait être le leader incontesté dans le domaine de la toiture, sinon pour son apparence. Sur ce point, il est nettement inférieur aux autres formes de toiture, il est donc possible, bien sûr, de trouver un tel toit dans la construction de maisons privées, mais le plus souvent il est utilisé pour les dépendances.
Toit à deux pentes (pignon), du point de vue du design, semble déjà plus attrayant. Ce type de toit populaire peut être trouvé presque partout: à la fois dans les bâtiments en bois simples et dans les maisons d'élite.
Un toit de cette forme est maintenu sur des murs porteurs, ainsi que sur les pignons de la maison. La forme du toit, qui se compose de deux pentes, ressemble à des triangles inachevés.
Le toit forme cassée - c'est pratiquement le même pignon, mais avec un grand grenier. Par conséquent, elle trouve de plus en plus de fans. Si le toit de ce type est monté correctement, le grenier prend alors la forme d'un espace de vie à part entière.
Toits en croupe en termes de design, ils ont l'air très attractifs. La vue de la maison est plus solide, solide. En termes de fonctionnalité, ce toit est considéré comme très pratique, fiable, mais le prix de sa construction est très élevé. Ce qui distingue ce type de toit des autres, c'est que sa structure se compose de 4 pentes: deux ont la forme d'un triangle, et deux ont la forme d'un trapèze.
Toit en croupe - cette conception diffère des autres en ce que toutes les pentes convergent en un point. Quatre pentes ou plus ont la même taille et une forme triangulaire.
Un autre point de vue qui mérite d'être mentionné est toit cruciforme financièrement, une conception assez chère. En Russie, rencontrer un toit de cette forme est assez difficile. Les bâtiments avec un toit de cette forme, a priori, doivent avoir une disposition très complexe (pignons au-dessus de l'entrée, greniers avec éclairage latéral).
Lors de l'érection de l'un des toits ci-dessus, vous devez aborder les étapes de la construction de manière très approfondie et sérieuse! Il est impératif d'effectuer tous les calculs de toit nécessaires, qui doivent inclure à la fois les charges de neige et le vent.
Structures de toit en bois
Pour une meilleure compréhension des caractéristiques de conception, nous listons les principaux nœuds des toitures en bois:
- En premier lieu, il y a des pentes, des plans de toit, qui sont situés à un certain angle.
- Les cheminées sont une chose nécessaire pour toute maison en bois. Étant donné que les poêles russes sont encore utilisés dans la plupart des maisons, un élément tel qu'une cheminée est une partie importante non seulement du toit, mais de toute la structure de la maison.
- L'endroit où les deux pistes se connectent au sommet est appelé le patin;
- La gouttière à travers laquelle l'eau s'écoule est un drain.
- Tuyau pour le soin des eaux pluviales.
- Surplomb frontal (cette partie fait souvent saillie sur toute la surface du bâtiment).
- Si le toit en bois a une structure complexe, une vallée (coin intérieur du toit) apparaît.
- Et bien sûr, on ne peut manquer de parler d'un élément aussi important que le système de chevrons de toit.
Un examen détaillé des nœuds principaux du toit
Considérez plus en détail les principaux éléments qui composent le toit. Personne ne prétendra que pratiquement tous les toits ont des éléments similaires. Par exemple, les chevrons ou les fermes, qui sont présents dans toutes les formes de toits, où il y a des rampes. Chaque toit a également des entretoises et des biseaux. Et, bien sûr, aucun toit ne peut se passer de matériaux de toiture, ainsi que de couches d'imperméabilisation et d'isolation thermique.

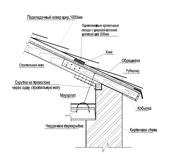
Si nous considérons les principaux éléments porteurs du toit, ils devraient être constitués de chevrons, de Mauerlat, ainsi que d'un autre élément important - le lattage. Lors de la construction d'une maison en bois, de nombreuses unités de toit sont constituées de planches, ainsi que de différentes poutres et rondins.
Il est important de choisir les bons matériaux pour la construction du toit, car en fonction du matériau final choisi, la méthode par laquelle tous les nœuds du toit seront finalement connectés sera déterminée.
Les autres éléments importants du toit sont les fixations: entretoises, diverses, utilisées si nécessaire, barres transversales et supports. Ils sont nécessaires pour donner à l'ensemble du toit la rigidité nécessaire.
Si l'on suppose que la maison aura de grandes portées, la nécessité des éléments ci-dessus sera beaucoup plus élevée. Il convient de rappeler que tous les détails qui sont connectés les uns aux autres ne sont rien de plus qu'une ferme en treillis.
Un autre détail important à considérer est Mauerlat. Il s'agit d'une poutre qui est posée sur tout le périmètre des murs porteurs. Il est nécessaire pour que les chevrons de support puissent être montés dessus, et lui-même, à l'aide de supports métalliques, doit être fixé à la maison en rondins. Si des coins se forment soudainement, ils sont fixés avec des boulons de serrage, ainsi que des supports.
Il convient de mentionner ici que pour le système de chevrons, seules les variétés de bois de la meilleure qualité doivent être utilisées, sans le contenu des nœuds, ainsi que les fissures et autres défauts évidents.
Dans la plupart des cas, dans diverses formes de toits, seuls deux types de systèmes de chevrons sont utilisés - suspendus et en couches.
Si au milieu de la maison il y a des murs supplémentaires, il est logique d'utiliser des chevrons posés. La durée ici est également importante. Si les structures de toit en bois ont une travée de plus de 5 mètres de largeur entre les supports, vous devez installer des pentes dans le système de chevrons.
Dans ce cas, les extrémités inférieures des chevrons de pose butent contre le bloc de support (Mauerlat), puis le poids total de la structure du toit ira aux murs.
N'oubliez pas que vous ne pouvez utiliser des chevrons en couches que si les murs de la maison sont très solides et fiables. Lors de l'utilisation de chevrons en couches, la charge sur les murs porteurs extérieurs du bâtiment est très élevée.
Lors de l'utilisation de chevrons en couches, le système de chevrons devient la structure principale de tout le toit de la maison. Ainsi, les chevrons de la structure de toit en bois doivent avoir deux supports: à une extrémité, ils doivent reposer sur le Mauerlat, et l'autre extrémité repose sur la structure de la crête du toit, ainsi que sur la piste qui passe sous la crête.
Un autre type de systèmes de chevrons est celui des chevrons suspendus. Ces chevrons doivent être fabriqués avec des matériaux de très haute qualité.Le système de chevrons de ce type est très populaire, surtout si lors de la construction des murs, ils se sont révélés assez légers. Un tel système de chevrons ne subit aucune charge horizontale.
Un autre avantage significatif du système de chevrons de ce type est la possibilité de construire des étages supplémentaires si les portées de la maison sont suffisamment grandes.
Il est nécessaire de prendre en compte le fait que les chevrons suspendus peuvent être réalisés en différentes versions, à la fois simples et complexes.
Les chevrons suspendus diffèrent également des chevrons en couches en ce qu'ils ont un support exclusivement sur les murs. Dans ce cas, les jambes de chevron ne fonctionnent principalement que pour la déflexion, ainsi que pour la compression. Cela crée une force horizontale qui agit sur l'éclatement des murs.
Pour réduire considérablement ces effets sur les murs, un élément tel qu'une bouffée est utilisé. Avec l'aide de celui-ci, la connexion des chevrons se produit. L'utilisation de bouffées comme poutre de plancher est assez courante.
La construction de toit la plus simple d'une maison en bois est lorsque seuls quelques chevrons sont amenés au sommet du toit et connectés à la crête.
Gâteau de toiture en détail

Il convient de dire un peu que, quel que soit le matériau de toiture choisi, la composition du gâteau de toiture sera toujours à peu près la même.
Quant à la caisse, dans différents cas, elle devrait être différente. Si du métal ou de l'ardoise sera utilisé comme matériau de toiture, il est conseillé d'utiliser des barres. En appliquant une couverture de matériaux à base de bitume, dans ce cas, la caisse doit être solide. Pour les carreaux métalliques, le lattage peut être constitué de planches.
Pour la bonne disposition du gâteau de toiture, vous devez suivre certaines règles immuables. En voici quelques uns:
- lors de l'utilisation de matériaux de finition, elle doit être à une certaine distance (environ 5 millimètres) de la couche qui est responsable du pare-vapeur afin que le matériau de finition ne soit en aucun cas endommagé par la formation de condensat;
- la couche pare-vapeur doit être fixée avec un léger jeu par rapport à la couche d'isolation et un dégagement de ventilation approprié doit être assuré (en hiver, lorsque des froids sévères se produisent, un tel jeu ne permettra pas au film de se déchirer).
Il convient de rappeler que la perméabilité à la vapeur de l'intérieur vers les couches extérieures peut augmenter considérablement et que toutes les couches de la tarte doivent donc être montées conformément aux instructions. Cela est particulièrement vrai si la maison est en bois.
Il est nécessaire de prendre en compte les caractéristiques du matériau d'étanchéité. Sa capacité à faire passer l'humidité à l'extérieur, sans aucun doute, devrait être bien supérieure à celle des couches internes de pare-vapeur. Si ce n'est pas le cas, la vapeur, qui s'accumule progressivement dans la couche intérieure de l'isolation, va créer de grands volumes de condensats, ce qui peut conduire à une diminution significative du niveau élevé d'isolation thermique.
Quant à l'espace situé sous le toit, et à la couche pare-vapeur, il doit bien se prêter à la ventilation.
Si un toit est en cours de construction pour une maison en bois, lors des travaux d'installation, en aucun cas, l'utilisation de mousse d'installation n'est recommandée! Il est possible que son utilisation puisse gâcher les couches du gâteau de toiture, y compris l'isolation ou les couches spéciales de matériaux isolants.
Connaissant la structure de base d'un toit en bois, vous pouvez créer un véritable toit de vos rêves, qui vous ravira non seulement, mais attirera également les yeux des autres! L'essentiel est de choisir la bonne forme et d'en faire un abri fiable contre les surprises du temps!

Hélas, pas encore de commentaires. Soyez le premier!